智能配用电系统
MYS系列配用电综合自动化系统

MYS-9000智能配电监控系统

集控中心构架:
系统可接入各种安防设备,包括各种摄像机、硬盘录像机、报警器、门禁、环境采集器等(安防辅控集成);
三维电子地图,全景式、立体式直观展示(GIS);
完备的电气SCADA系统功能;
高清大屏幕投射管理;
温湿度、有害气体环境监测,通风联动。
智能中压开关柜

用于35KV及以下配网系统,具备完善的保护、计量、控制、诊断与维护功能,一二次深度融合;
具备现场逻辑可编程(PLC)的保护方案,0.5S的计量精度、具备一年4个时区,每天12个时段的分时计费管理功能,支持精细用能管理;
基于逻辑可编程的电动地刀、电动底盘车控制功能,实现一键順控;通过监视开关分合闸线圈电流,分合闸次数,分合闸时间等参数,实现对断路器运行状况实时预警报告;
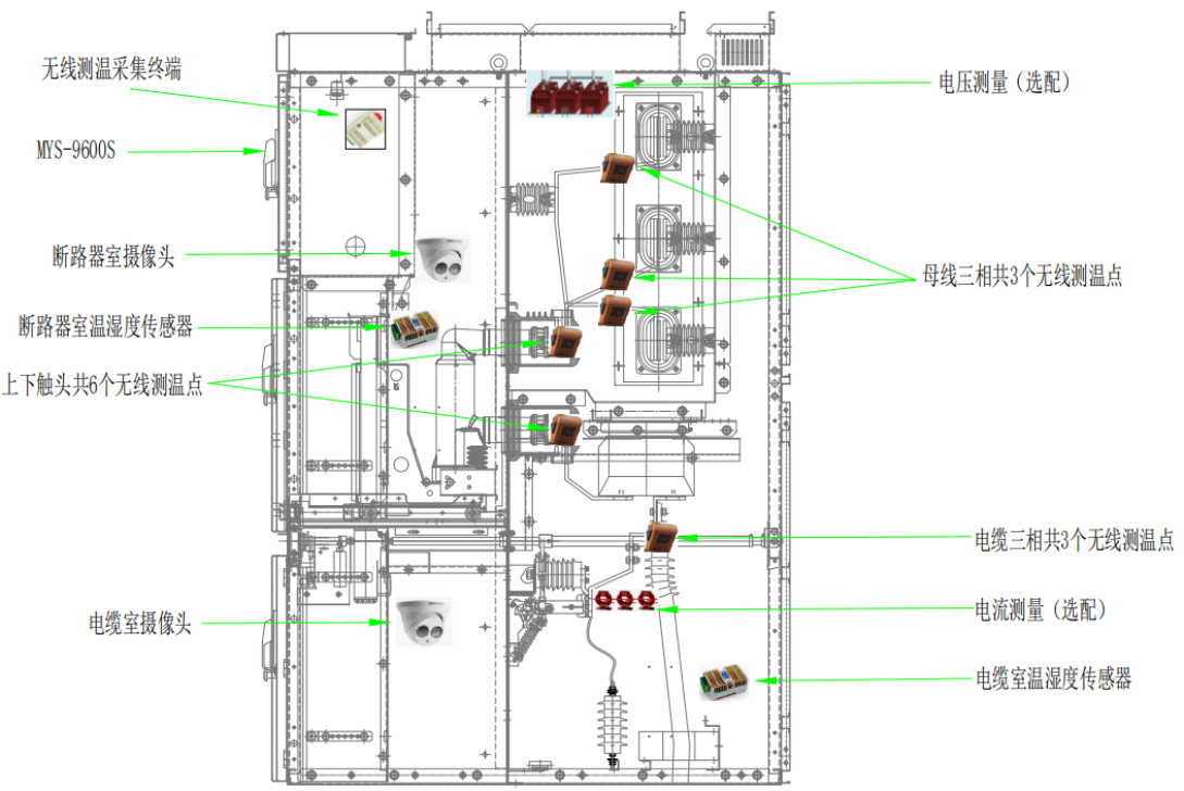
对柜内的元器件、绝缘件、母线、电缆头等部位局部放电监测分析,可以了解局部放电的类型(电晕局放、空隙局放、沿面局放等)、相位、强度;准确反映出设备局放严重程度运行状态,具有很强的抗干扰能力,具备单次和连续实时在线检测、监测模式,并能对放电严重程度予以报警指示,具有检测数据的保存和导出以及自检功能。
关键点测温,包括开关触头6点,电缆接头3点,母线接头3点;环境温湿度检测与控制。
模块化智能继电保护测控装置

适用于35KV及以下配网系统,具备完善的线路保护、电机保护、所用变保护、变压器主后一体保护、 PT保护、计量、控制、诊断与维护功能,是中压柜一二次融合的核心智能终端,该装置既是中压开关柜就地保护、计量、智能诊断维护的智能核心,也是云运维平台的终端设备;
具备现场逻辑可编程(PLC)的保护方案,0.5S的计量精度、具备一年4个时区,每天12个时段的分时计费管理功能;
基于逻辑可编程的电动地刀、电动底盘车控制功能,实现一键順控;通过监视开关分合闸线圈电流,分合闸次数,分合闸时间等参数,实现对断路器运行状况实时预警报告;
支持1~3路电弧光保护功能;
基于智能移动终端(智能手机、掌上电脑等)的辅助分析软件,轻松完成维护配置、状态查看、软件在线升级、事故分析、虚拟测试等功能;
通过许昌开普检测研究院股份有限公司的检验认证,EMC严酷等级满足IV级标准
智能中压开关柜

状态无死角检测;
视频自动识别,视频监视设备实施状态,犹如就地亲见;
图形化逻辑组态,按照需要设计PLC控制逻辑,实现真正意义上的“一键顺控”;
实现真正意义上的远方值守
智能低压柜系统

一二次深度融合,高度集成,无需外部元件;
0.5S的计量精度、具备一年4个时区,每天12个时段的分时计费管理功能,支持精细用能管理;
自身具备开关温度检测功能,具有漏电流保护功能(需外配漏流互感器);
与施耐德、ABB等主流塑壳开关无缝接口;
分250A以下和250~600A两个规格;
支持物联网无线(LORA)组网。
三相数字化多功能电表

可编程、自动化测量、LCD显示、数字通信等功能为一体的智能三相综合电力参数监控仪表;
集数字化、智能化、网络化于一身,使测量过程及数据分析处理实现自动化,减少人为误差,能够全面替代数显仪表、数据采集器等仪器;
结构紧凑,技术先进,测量功能强大,实现了对传统仪表的革命性设计,是组成电气化系统的理想产品。
低压柜智能测控模块

集成三相多功能智能电表的全部功能,具有完备的高精度测量以及0.5S级计量功能,具备一年4个时区,每天12时段分时计费功能,满足企业用能成本的精细统计分析;同时具有高达21次谐波的谐波含量分析以及K因子,THD等电能分析功能,装置配置有完备的需量分析功能;;
集数字化、智能化、网络化于一身,使测量过程及数据分析处理实现自动化,减少人为误差,能够全面替代数显仪表、数据采集器等仪器,具备物联网无线组网能力;
3路铜排高精度温度测量,无需安装温控器,实现开关运行状况实时预警报告;
小体积、塑壳设计,无需二次互感器,安装简便,实现工厂快速组装,与施耐德、ABB等主流塑壳开关无缝接口。
二、MYS系列环境监测系统

对配电所内的温度、湿度、烟雾、电缆沟水位等环境数据进行实时采集、处理,环境数据与设定阀值作比较,超过警告线将自动报警并联动控制相应的风机、除湿机、空调、水泵等设备运行,并实时将数据传输到后台或手机终端